Studio Home

Rombo I

Mexico City, Mexico

2024

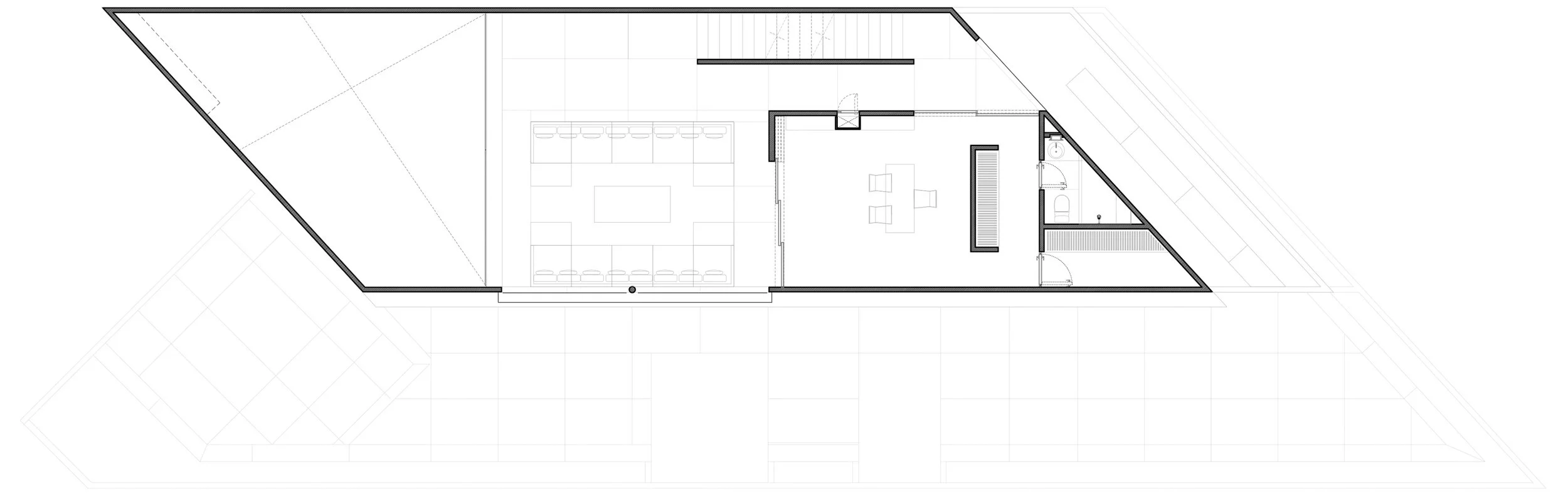
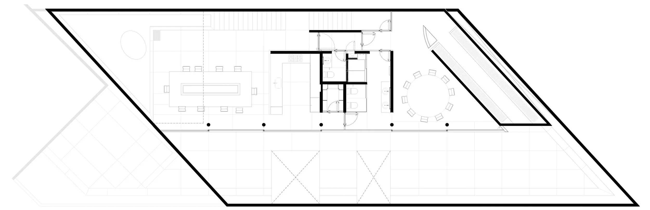
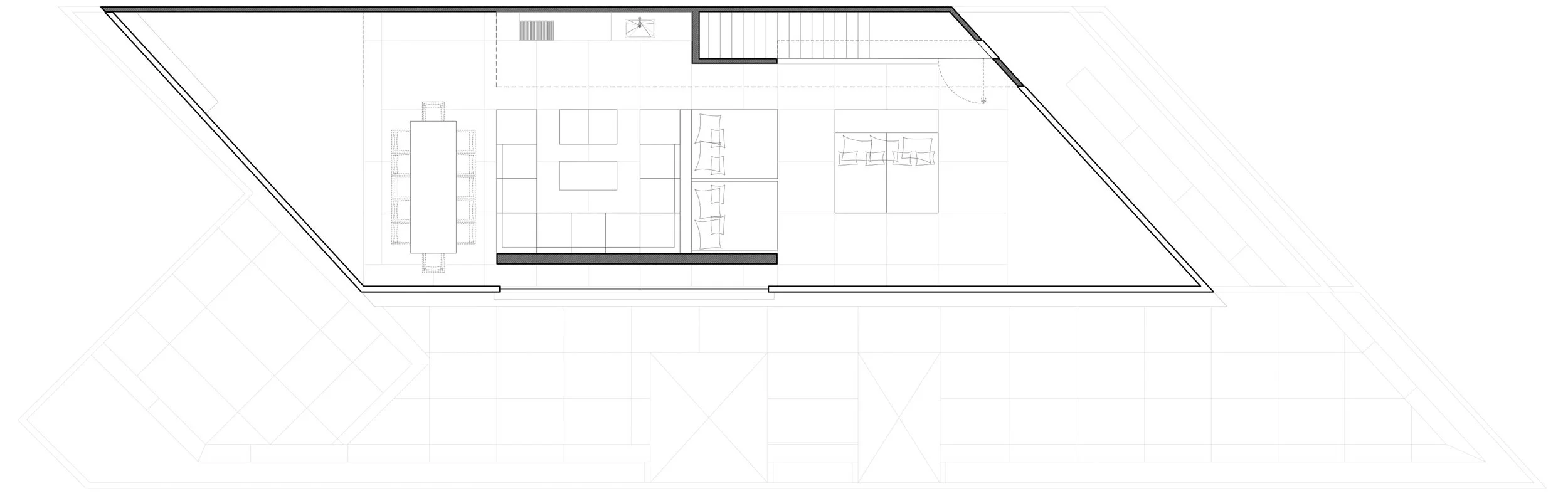
Rhomboids are parallelograms with non-right angles and adjacent sides of unequal length. This geometric configuration applies to the plans of these four houses designed and built in Mexico City. Located in the center of the Mexican capital in a wooded area called Bosques de las Lomas, this group of buildings is constituted by three houses and a studio. One of the objectives of the designs was to the privacy of the residents. We wanted to have an exterior that would protect privacy, [so that residents would] be seen only by the sky, the air, or the sun and could live in the house in solitude amid the bustle of the city.

Joe Fletcher Photography

The Studio was imagined in 2008 but built and finished in 2016.

The 5,930-square-foot (552-square-meter) structure serves as our studio. It is a three-level building with two small studios and a reception space on the ground floor and the main workspace on the second floor. 

There are spaces for architects, each with their own projects, and Ana my wife, who is the administrator of the practice.