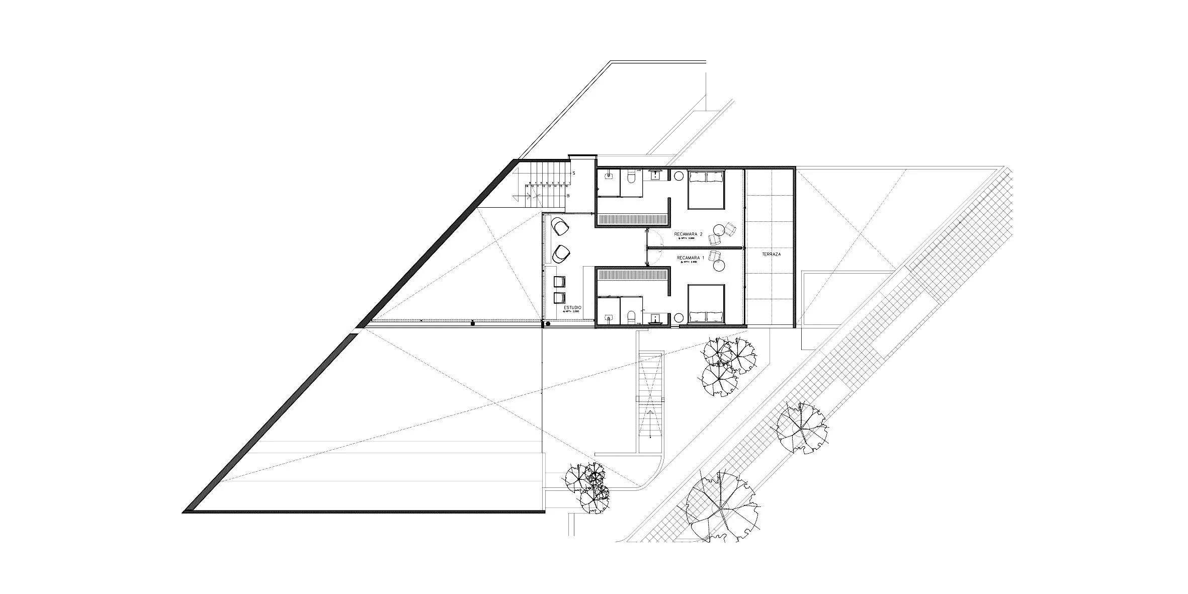
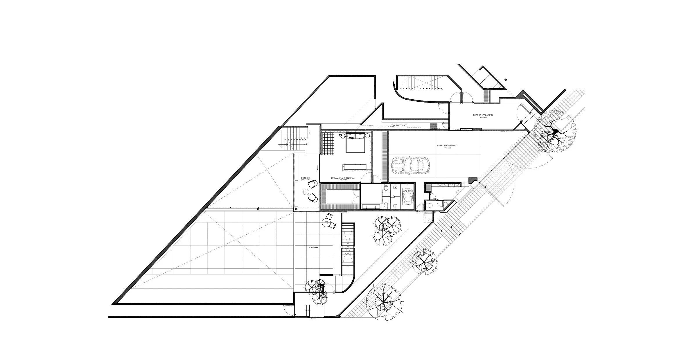
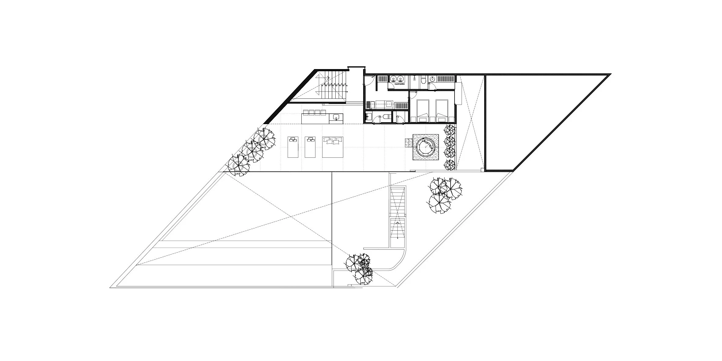
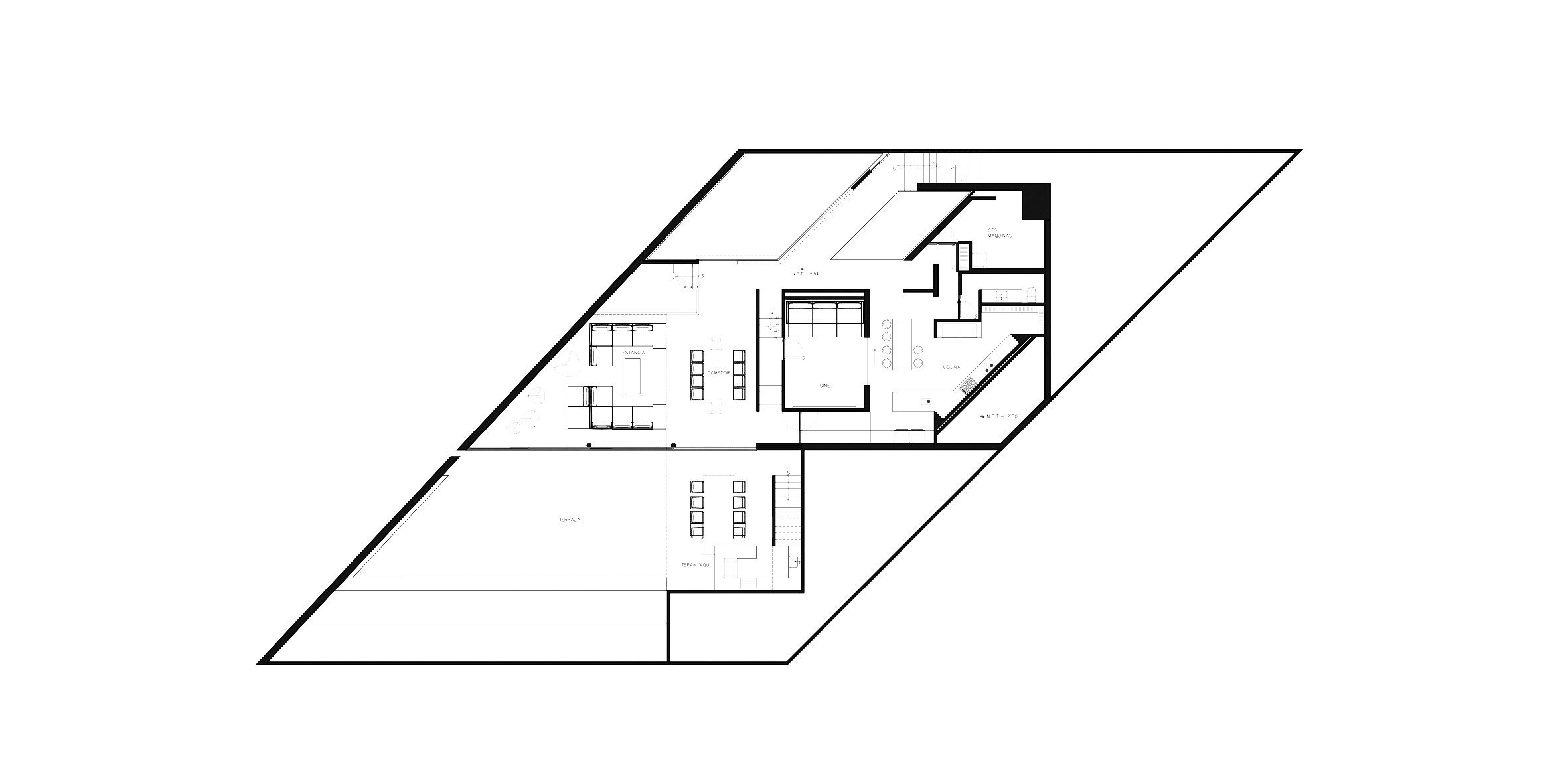
Two small houses were present on the site. One block was transformed into a triple-height space that serves as the center of the residential complex, facing an outdoor terrace. Trees and green lattices protect the structure from the sun. The ground floor of the four-story building includes the kitchen and breakfast area, guest bathroom, cinema, dining room, main room, and teppanyaki space, as well as covered and open terraces. The main bedroom and terrace are above, while a study and two bedrooms are set on the next level. A laundry and service space, as well as a terrace and spa area, are on the top level. Rombo II (2017) has a floor area of 2,594 square feet (241 square meters) and a total plan of 7,187 square feet (600 square meters).

Joe Fletcher Photography

Rombo II

Mexico City, Mexico

2015-2018

When we acquired the land, there were two houses on it. One of them contained a small recreational area and a private room. We decided to keep this building and expand it with a triple-height room functioning as the center of the house and an exterior terrace that’s like a house inside a house. The first two glass-enclosed floors integrate with the exterior façade and merge with the triple-height room.

Outside, we also preserved the trees that work as a green wall to protect against the light from the south and the warmth of the sun in winter. Mexico City sits at a latitude (19.4326˚ N) that places it extremely close to the tilt of the Earth’s rotational axis (23˚), which means the sun’s rays penetrate more fully in winter and less so in summer. As a result there are a mere seven days each year when the sun from the north is not strong, which made blind walls the ideal solution for the rear.

Miguel Ángel Aragonés