Mar Adentro

Homes

Los Cabos, Baja California Sur,

México

2017

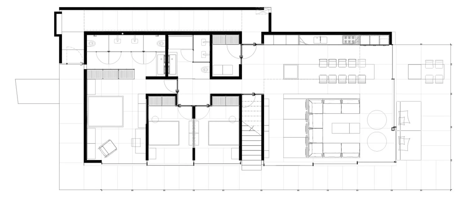
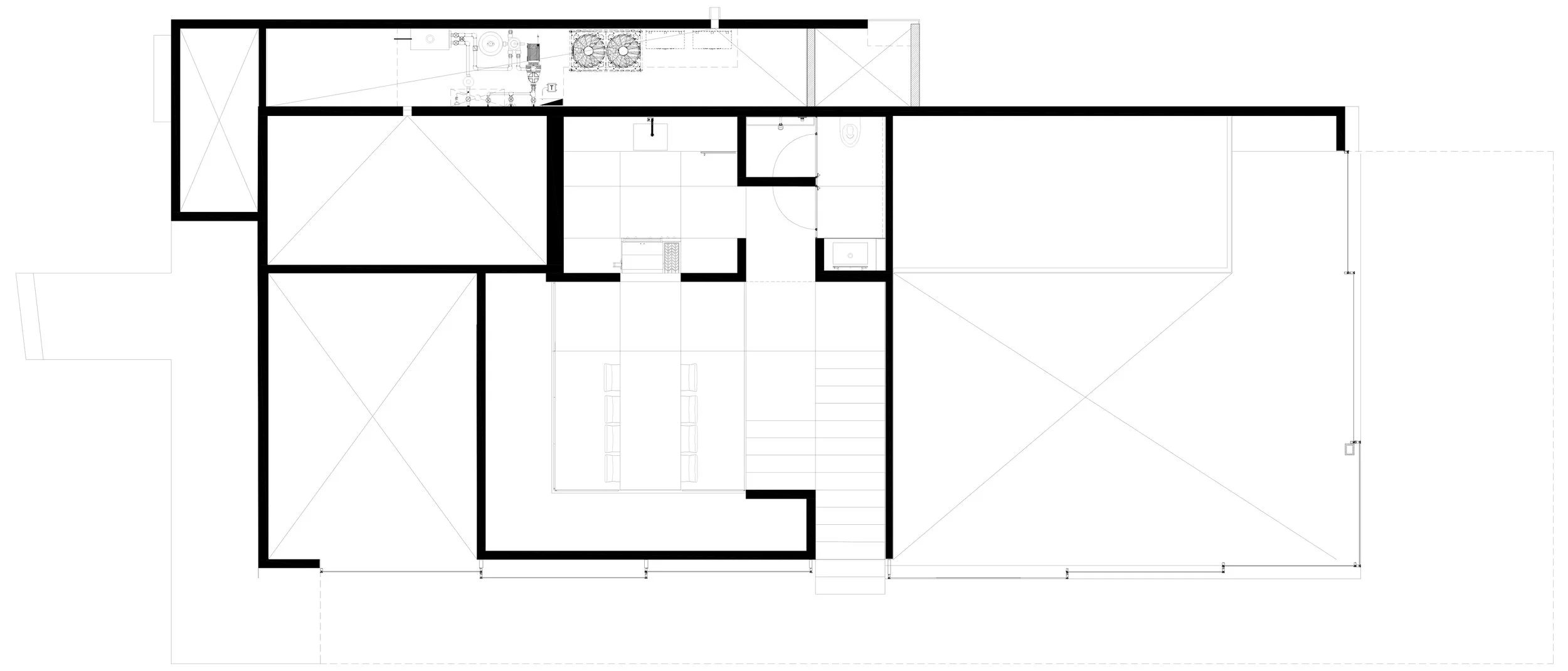
As part of the overall Mar Adentro Hotel project, eighteen private residences were conceived in 2012 and completed in May 2017. As is the case for the hotel, these structures are in steel and reinforced concrete. The interiors were conceived in collaboration with the Italian luxury furniture firm Poliform. Miguel Angel Aragonés has thought carefully about of the virtues of prefabrication in such instances. He says, "For a long time, I have felt that construction has failed to evolve on a par with other endeavors: the automobile, for example, in one hundred years went from being a wagon to what we know today. And yet when I look back at the Barcelona Pavilion by Ludwig Mies van der Rohe, it is in essence very similar to what we see today in architecture, albeit transgressed a bit, perhaps through involution.

Joe Fletcher Photography

We see unnecessarily complicated, but relatively non-complex structures scattered around the world. There are some risky proposals that form part of the current panorama we refer to as 'modern" or 'contemporary,' but they have not been very evolutionary." As an antidote to this state of relative inertia, the architect has invested himself in innovative structural systems. Of the Mar Adentro houses, he says, "Each room was built in a factory. Poliform was our ally. We built the entire interior structure and sent it in boxes across the sea to its destination, where it was assembled on site by local hands. In a matter of days the first room was ready, of a quality subject to the tyranny of a machine and the wisdom of hands dedicated over the course of a lifetime to construction.

There was no room for improvisation, and yet the room was fashioned with intelligence, imagination, and dedication. I learned from those German and Italian manufacturers what we sometimes fail to intuit from schools or books over the course of many years." The system employed is seen as a precursor of a large-scale modular construction system that can be easily used to create residences of variable size. "The important thing," Aragonés says, "is the versatility of this structure, one that can be entirely factory-made then raised on site in a friendly manner."