La Palma
MExico CITY, México
2009-2010
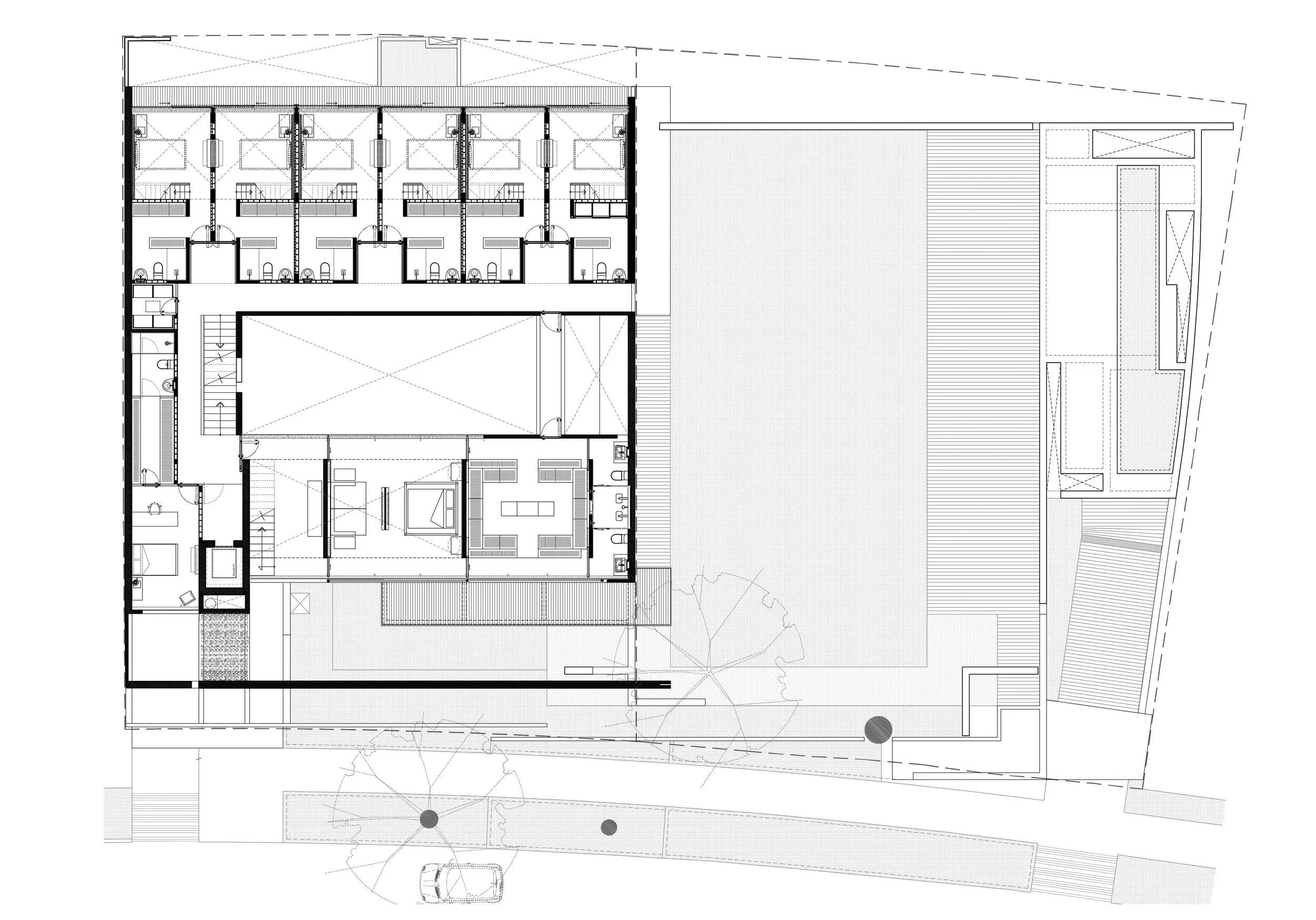
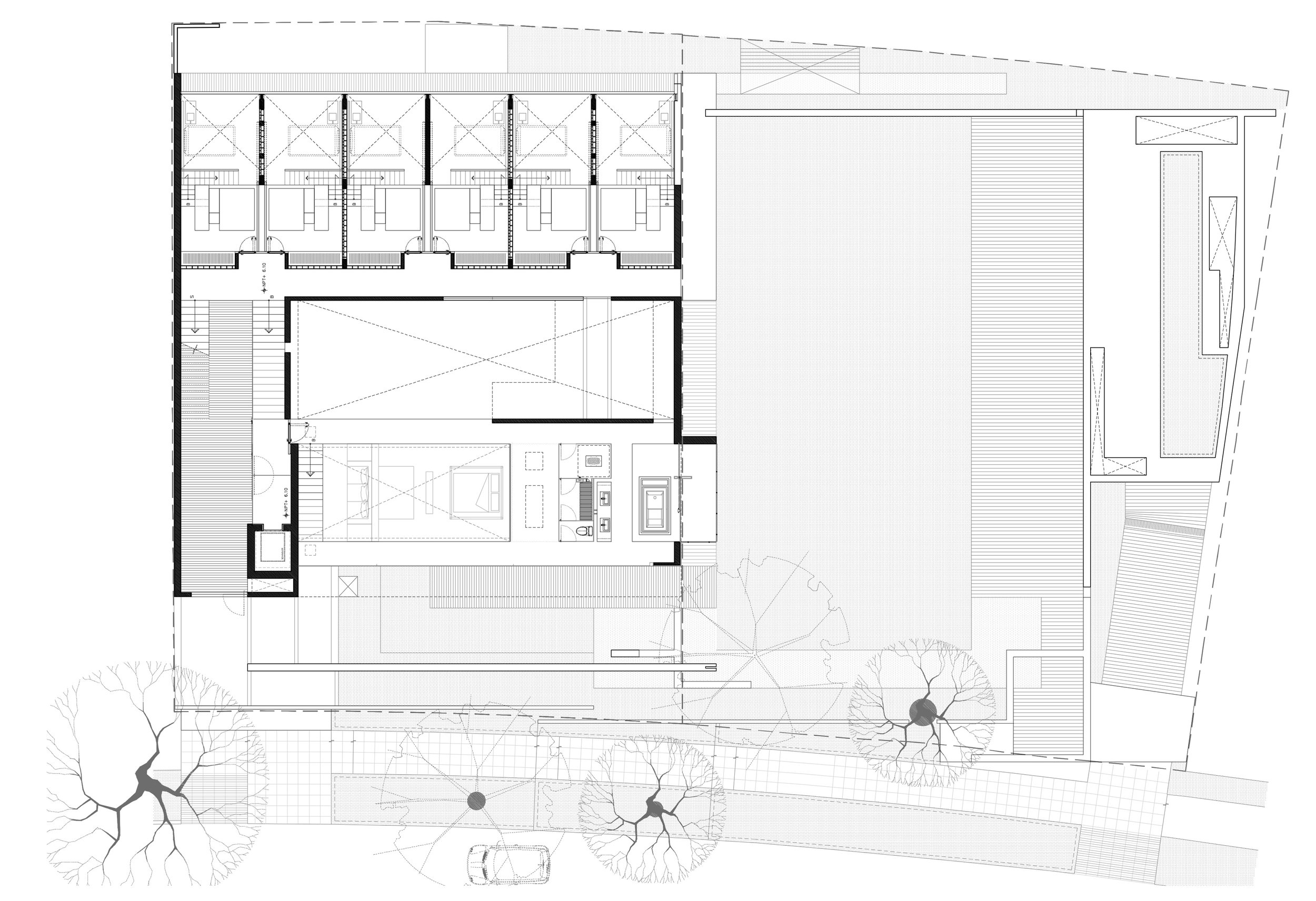
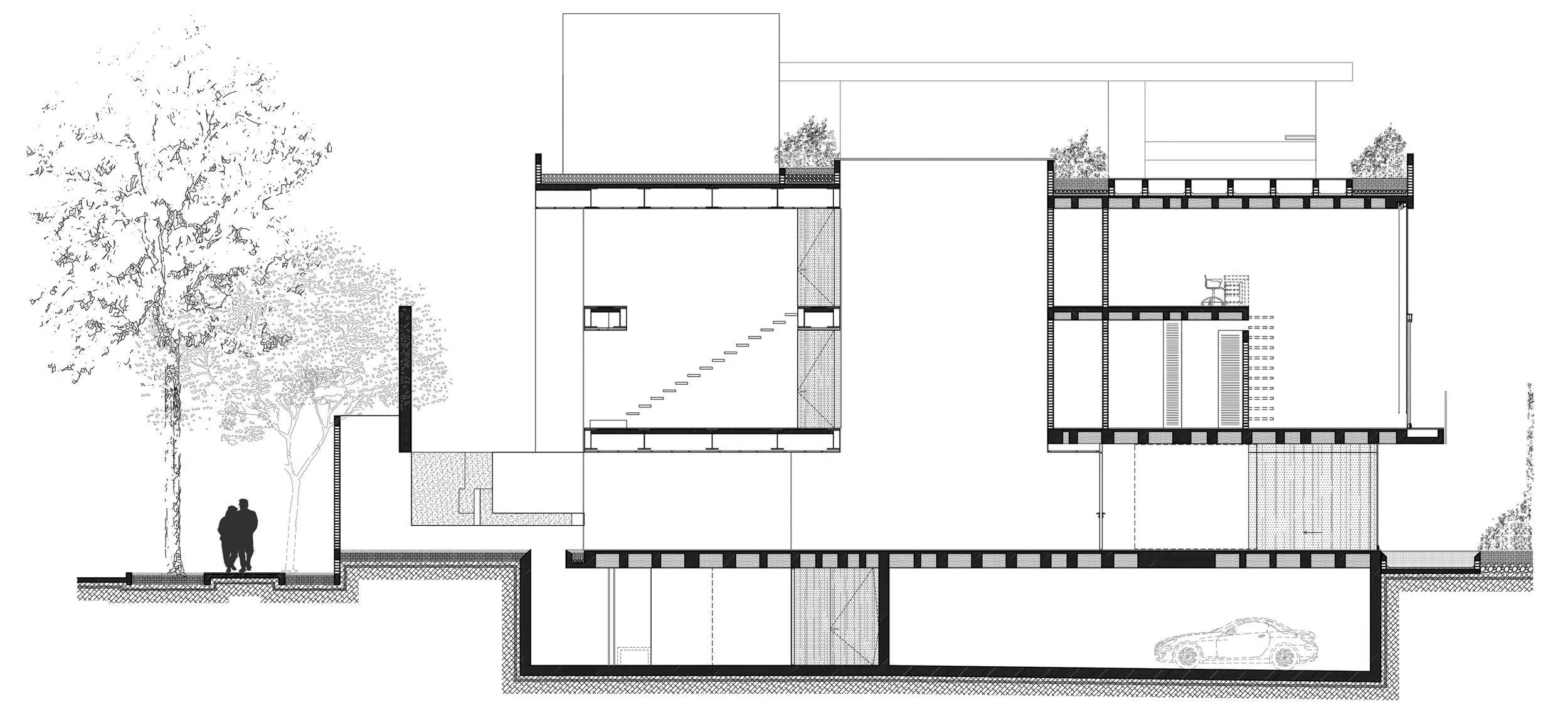
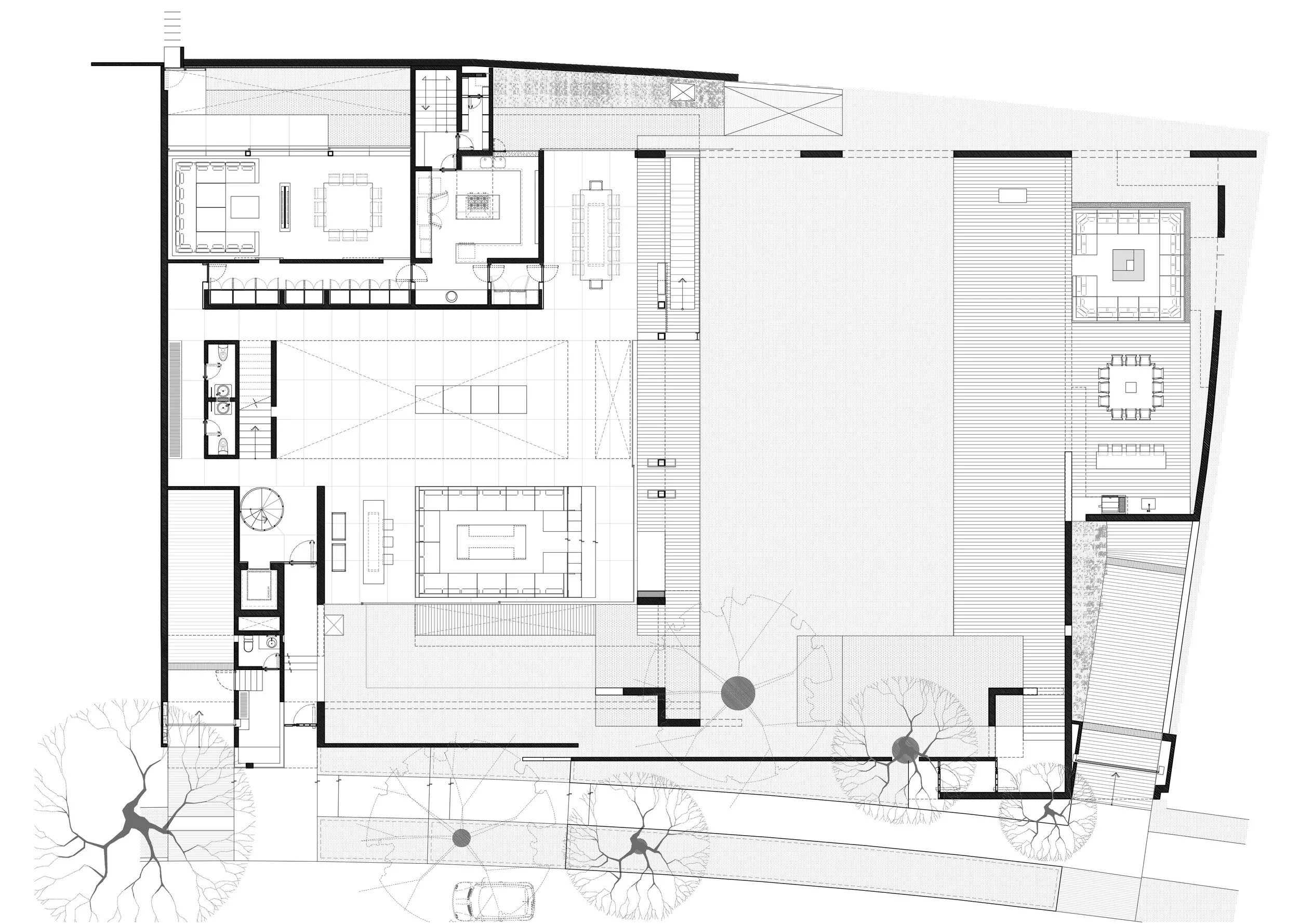
Designed for a well-known Mexican personality, this house had an extremely complicated program intended for an extended family, including seven children. There are seven bedrooms, each one with a dressing room and bathroom, as well as four service bedrooms. The master bedroom was conceived as an apartment within the house, connected to the central patio but separated from the children's bedrooms. The security program required that residents not be visible from the street from any angle. A movie theater and a twenty-car garage are also part of the scheme. The overall design is rectilinear and includes high, spectacular interior volumes that are typically lit at night in saturated colors. The architect explains that he engaged in this project on the basis of an assurance that the design would be respected once the house was completed, but the client unfortunately decided to "move important parts of the original program, something I did not accept to do and changed the house totally from what the photos show." One of the architect's goals in this instance was to make use of Mexican furnishings, art, and handicrafts. "I imagined …
Philip Jodidio Text
Joe Fletcher Photography
… a place that would be visited by diplomats, or presidents," he says, "where you could show them what we can do in our country, as the main guest for the house was a Mexican president and his wife." The 9,644-square-foot (896-square-meter) house was built with reinforced concrete, steel, and bricks. This house and the changes made after the design are clearly a point of some emotional engagement on the part of Aragonés. He says, "It seems to me that architecture is essentially a language of spaces, a poetry of forms, sounds, textures, light, color, and life; it is the refuge of all mankind.
"Above all else, the architect must take it upon himself to maintain a dialogue…
…between space and function, while at the same time understanding the needs, both physical and spiritual, of those for whom he is working. I firmly believe in the similarity between music and architecture, in respecting silence in order to lend meaning to sonorousness, contrast, notes, and rhythms. In architecture, each habitat triggers a sensation: a dark space enhances light, a small space lends meaning to breadth, an orange wall foreshadows a blue ambience; scale, light, and color always seek out their complements."
PRoject DEtails
-
Miguel Angel Aragonés
-
Roberto Gutierrez, Jose Torres, Rafael Aragonés C., Rolando Vazquez
-
Joe Fletcher
-
Miguel Castro Leñero, Fernando Bermejo
-
Mexico city, Mexico
-
1,200 M2
