Mar Adentro

Spa

Los Cabos, Baja California Sur,

México

2015

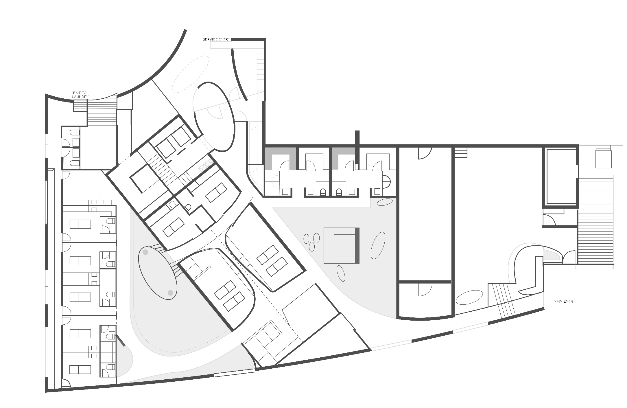
The Spa was part of the Mar Adentro Hotel project but we designed it as a separate entity. I always imagined that place like a cenote, meaning a cave or sinkhole beneath the earth that sometimes receives sunlight from holes above. The spa is similar in that beneath the surface of the water there is a platform. We opened oval holes to receive water and sunlight,"

Joe Fletcher Photography

You can take a saltwater shower because all the water in the interior of Mar Adentro comes from the ocean. I planned that above the surface of the water everything would be white to receive the natural light. Below the surface I imagined a black space to give a major contrast with the holes and the light and water."

*An American group took over the hotel and changed the spa spaces, so they are no longer visible in their original form.