Cumbres

Santa fe, México

2009

The architectural idea touches down and reaches its full expression in space. Drawing is the medium through which that idea is expressed — it is the first tangible form of a project. It involves a very fine connection between the brain and the hand, the first translation into lines of what is conceived and, ultimately, built.

In school I found it very hard to express my ideas. This was often frustrating, but even though I drew clumsily, I always tried to commit the essential content, the necessary idea, to lines.

It is both useful and enjoyable when the work you finish — a house, for example — becomes a kind of laboratory in which you yourself experiment. When you live for a while in a house you created yourself, you can see and confirm its successes and its limitations. It turns into a continuous learning process.

I also learned from my work through photographs of the finished spaces. Thanks to these images I came to understand many things about the phenomenon of light. In this way, for example, I was able to grasp what the light of dusk is made of — that fleeting instant — and I sought to have that luminous moment frozen in other spaces. I also tried to understand the contrasts between interior and exterior light, the key to allowing light to unify spaces, to fuse inside and outside in my buildings.

Photography Victor Benítes, MAA

Text MAA

I believe that anyone who comes to you to build their house is performing an act of faith — they have decided to trust you. At the outset, the architect must know how to listen. In this way he becomes an interpreter of desires and needs. Dialogue — that precise tool that brings us closer to truth, as Socrates taught — will always succeed in harmonizing ideas, creating an attunement between the architect and the person who will inhabit the space.

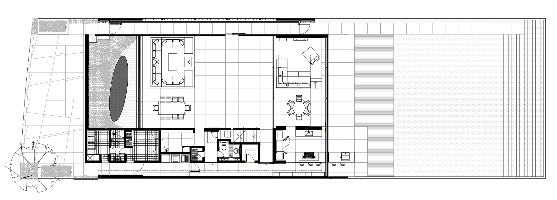
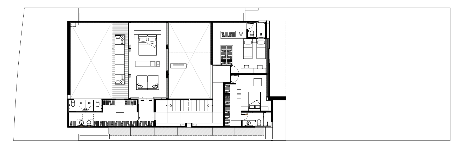
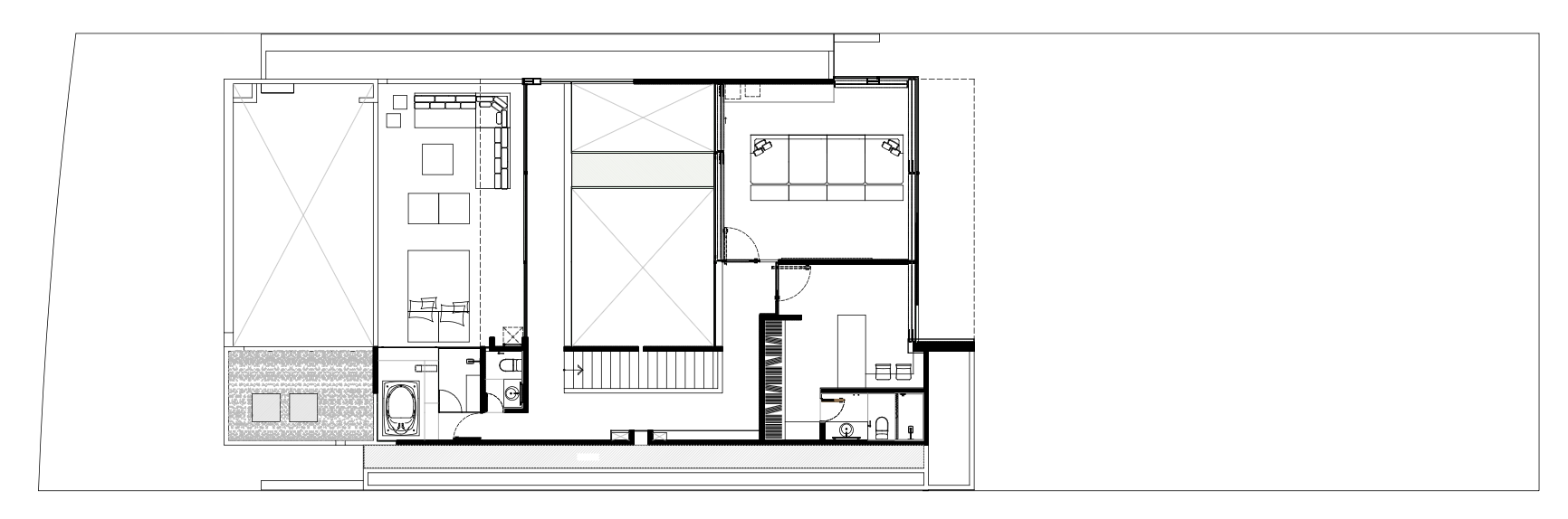
When I develop a project, I always learn in the process. Cumbres de Santa Fe exemplifies this perfectly. I had technical problems with glass, an essential material of that house: a box closed to the exterior, open only toward the south, with an open floor plan free of interruptions. An opaque volume — the box — housing two floating glass elements around an interior courtyard.

From that project onward, I realized that materials should only be used once you have mastered them technically, and that it is difficult to reach full satisfaction when you finish a work. Perfection is only an aspiration. It is not possible for a finished work to be entirely satisfactory. Whatever ends up as a flaw — a certain degree of frustration with some of the results — compels the next project, the one already at the door, to be better.

It is time and dedication that deliver results, though chance is often an ally. Rarely do we find what we were looking for.

Many artists end up copying themselves, and I find that regrettable. They use formulas that they repeat and apply to any problem; they settle into self-complacency and end up no longer innovating.

There is an obvious relationship between economic power and cultural influence, and a frequent confusion between value and price. The latter has always been a beneficiary of the aesthetics of status and "good taste," of the establishment of fashion as a form of consumption. It seems to me that freedom of choice brings us to results that are much closer to who we are, and therefore more innovative.

In our country there are architects who have fallen into the temptation of copying cultural and aesthetic schemes that are not their own. These only create entropy and disconnect us from our true cultural values.

Circumstances are always different, and you cannot answer everything with the same solutions. That is why self-criticism is essential — the ability to tune in to the circumstances surrounding each work, to adapt according to the demands of the moment.

I believe that only a free mind is capable of taking us into unknown corners. The fascination of the sciences and the arts lies in the understanding of the universe and in the ongoing capacity to discover and to surprise ourselves.

I don't believe in styles; I do believe in people. I believe in a personal language — the one each of us builds and achieves in solitude, in tune with one's own universe.

I remember hearing the master Juan Soriano say that he didn't like painters, that what he liked was painting. That helped me to understand that creation, the works themselves, ultimately stand above currents, fashions, and styles. It also helped me to see that there are artists who bring us closer to what we want to do and others who take us further from it.

In music, for example, the works of masters such as Keith Jarrett, Handel, or Wim Mertens come very close to what moves me.

PRoject DEtails

  • Miguel Angel Aragonés

  • Roberto Gutiérrez, José Torres, Tadeo López

  • MAA, Victor Benitez

  • Xawery Wolski

  • Santa Fe, Mexico

  • 700 M2