Social

Housing

MExico City, Mexico

1983

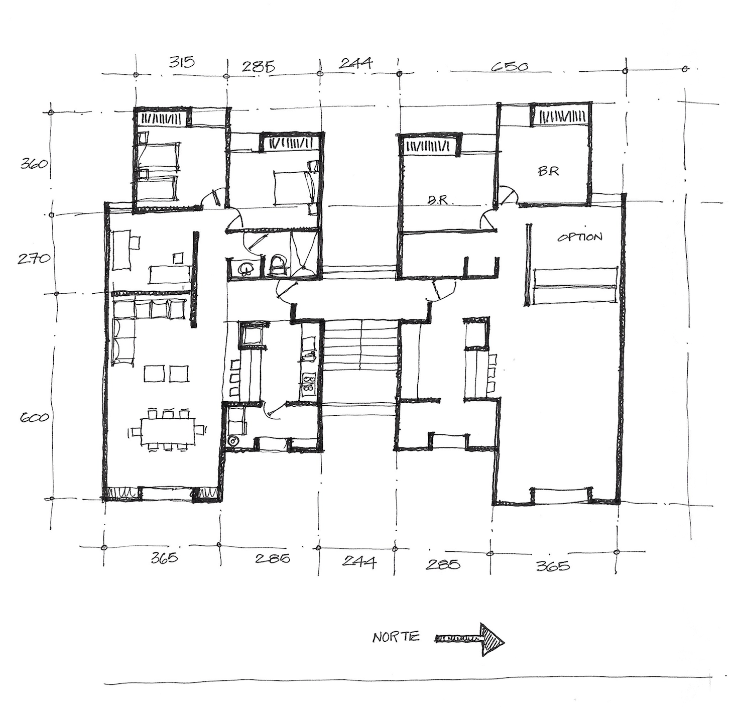
This 150-apartment complex, the biggest asset of which was to achieve a certain discretion within its context, and at the same time give each building its own identity without losing a sense of a whole.

Regardless of the modest materials used, this complex had the intention of dignifying apartments of such small dimensions, as well as limiting their cost, and to avoid making the person feel as if he lived within a sea of differences.

Volumes that interrelate with each other, combined plans and light variations in the cloudy tones with which the walls are painted all work to make the façades relate to the context, while on the inside a feeling of sobriety makes itself felt throughout the complex. In the apartments the distribution favors the independence of each member of a family.

MAA Photography

The Lomas Verdes apartment complex was built on a plot of land that had a very pronounced gradient in relation to the avenue which it is located on. Due to this fact it was necessary to build a containment wall, and although given Miguel Angel Aragonés refined sensibility for beauty such a construction held little appeal, he created a system which would avoid having to build a massive concrete wall utilizing a mesh web that both contained the land and at the same time could be used to hold plantings.

These apartments show the capacity to be simple when it is required and the total lack of any absurd desire of becoming a protagonist which Miguel Angel Aragonés has always portrayed. His capacity to adapt to the needs of the context, as well as act as caretaker care of spaces in which people will live, represent the virtues that made this project a success.

Text by Matiana Gonzales Silva

PRoject DEtails

  • Miguel Angel Aragonés

  • Georgina Amador, Juan C. Leon, Juan Carlos Calanchini, Gabriel Villalobos

  • Nicola Lorusso

  • Xawery Wolski

  • Mexico city, Mexico

  • 1,102 M2