There are no secrets, but there is one key: one must attend to intuition, feel things rather than intellectualize them. When an object reaches your hands and you place it somewhere for the first time — that was its place, its rightful spot. That way of approaching an object has more to do with creation. Intuition gives us the cue to read things that have not been codified.

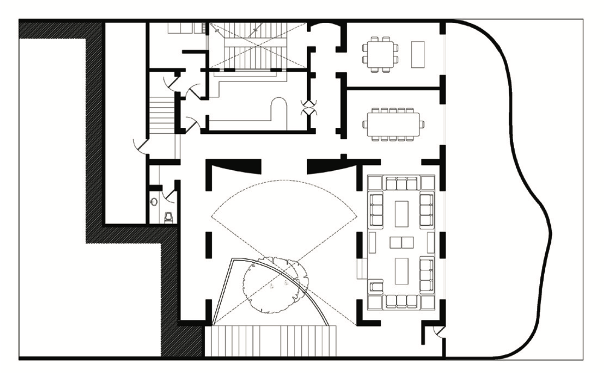
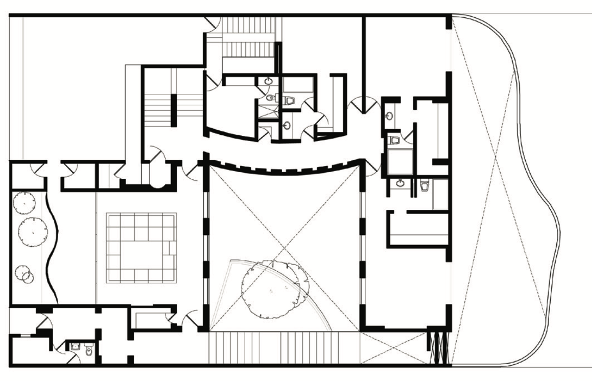
When I first saw the site where I would build the Laureles house, I was struck by a pair of oak trees occupying a slope of the land, lightly shadowed by their sinuous branches. I did not only want to preserve the sensation produced by those chiaroscuros cast upon the ground. More importantly, I resolved to respect the presence of these magnificent guests, who had inhabited that place for several decades. It was thus that the center of the house was given over to an interior courtyard that would keep this pair of trees in the best possible condition. They became a kind of signal — the true inhabitants of the house — and so from the very moment the project was drawn up, it was decided they would be included.

Around this project there also revolved the idea of paying a modest tribute to someone I consider one of the most important painters of the twentieth century: Gunther Gerzso. He explored..

Nicola Lorusso Photography

MAA Text

LAURELES

mexico city, mexico

1999

...like few others, the contre-jour effect — one of the forgotten themes in architecture. He achieved it on every canvas with a balance that set aside any attempt at improvisation; its beauty emanated from the limits he himself drew.

I also considered inviting other visual artists, among them Roberto Cortázar, Rafael Cauduro, Jorge Marín, Claudia Gallegos and Sandra Pani, who contributed to enriching the different spaces of the house and endowed each with its own personality.

The house contains two tributes. The first is to nature, and the second to Gunther Gerzso.

I have a clear intention to respect nature, to give it the place it deserves and make it part of my works. That is why I preserve it as an untouchable fragment.

We are stardust, we are energy, we are water. Our body is 75 percent of this vital liquid. We are also its cycle, for we will be the water of a plant, and then a cloud, and then rain that will return to the earth. Every time a tree dies, a part of us dies — we die with it. Each death makes us die a little. Caring for our surroundings is more than an idea, more than a phrase. To protect them is to protect ourselves, for we are one and the same. That awareness can be cultivated, and it should guide all of our actions.

PRoject DEtails

  • Miguel Angel Aragonés

  • Juan C. León, Carlos Salinas

  • Víctor Benítez

  • Roberto Cortázar, Rafael Cauduro,

    Gunther Gerzso, Mercedes Gertz

  • Mexico City, Mexico

  • 1,090 M2